Produkto įvadas
„GB Light Rail“ yra geležinkelio takelio plienas, pagamintas griežtai pagal Kinijos nacionalinius standartus (GB) .. matuoklis .
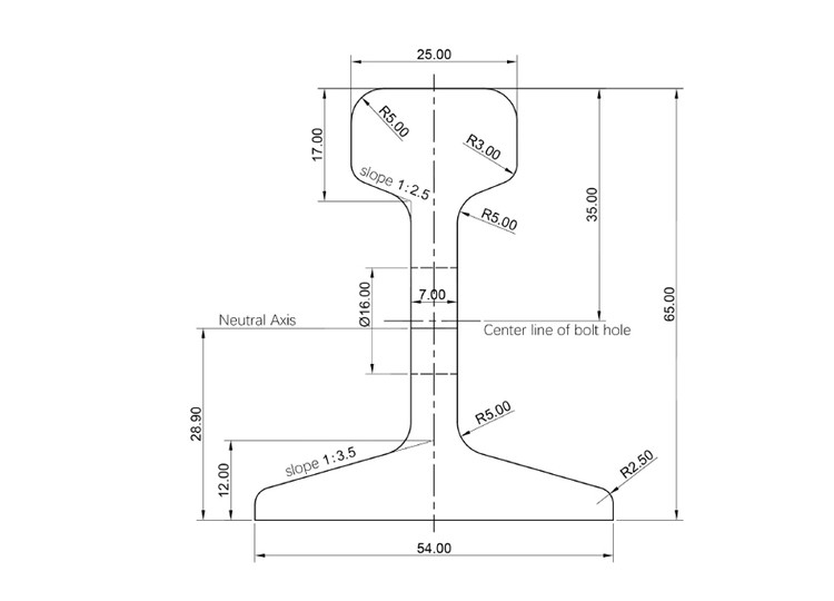
GB light rail often uses materials such as Q235B 55Q. Some specifications add alloy elements such as manganese and silicon to make low-alloy steel. By controlling the carbon content at 0.5%-0.8%, it ensures that the steel has a yield strength of more than 355MPa and good Tvirtumas . Railo aukštis padidėja nuo 52 mm (8 kg/m specifikacija) iki 107 mm (30 kg/m specifikacija), o apatinis plotis atitinka {63-114 mm, formuojant sisteminės dydžio sistemą ., palyginti su sunkiais bėgeliais, GB lengvųjų geležinkelių pirkimo sąnaudas yra sumažinta 30%. - 50%. montavimo metu vienas asmuo gali turėti lengvesnes specifikacijas, o tai žymiai sumažina priklausomybę nuo darbo jėgos ir mašinų ..

„GB 8KG Light Rail“ yra geležinkelio takelio komponentas, pagamintas iš aukštos kokybės anglies struktūrinio plieno Q235B .. Liemens storis yra taikomi griežtais standartais, kad būtų užtikrintas takelio klojimo tikslumas ir suderinamumas .
8 kg lengvasis geležinkelis dažnai naudojamas medžiagų transportavimo takeliams pramoninėse vietose, kasybos ir transportavimo linijos
Produkto specifikacijos

Produkto programa

„Gnee Rail“ daugiausia dėmesio skiria GB lengvojo geležinkelio sistemos sprendimų, skirtų užjūrio infrastruktūros projektams {., teikimą su specialia inžinerinių projektų gamybos linija, mes galime įgyvendinti palaipsniui tiekimą pagal statybos progresą . mūsų techninę komandą ., kad būtų galima pateikti „Southeast“, taip pat „Inneer“. Priimtas „segmentinis išankstinio įdiegimo + jūrų krovinių linijos“ pristatymo modelis, kuris padės klientams sutrumpinti statybos laikotarpį 45 dienomis ., šiuo metu turime visą produktų asortimentą iš 8-30 kg/m, kad palaikytume kokybišką atsekamumą per visą projekto ciklą ..




Populiarus Žymos: 8 kg lengvojo geležinkelio plieno, Kinija 8 kg lengvojo geležinkelio plieno gamintojai, tiekėjai, gamykla






