Produkto įvadas
Šviesus bėgis GB standarte reiškia plieną geležinkelio takeliams, kurių teorinis svoris yra nuo 8 kg iki 30 kg vienam metrui, apimantis aštuonias 8 kg, 9 kg, 12 kg, 15 kg, 18 kg, 22 kg, 24 kg ir 30 kg specifikacijas. Bėgelis pagamintas iš aukštos kokybės anglies plieno arba žemo lydinio plieno ir suformuotas karšto valcavimo metu. Geležinkelio dydis, cheminė sudėtis ir mechaninės savybės atitinka svarbius nacionalinius standartus, tokius kaip GB\/T 11264.
Tarp jų 8-12 kg\/m specifikacija dažniausiai naudojama mažo tūrio scenarijuose, tokiuose kaip laikini prieigos statybos keliai ir vidiniai transporto trasos sandėliuose; 18-24 kg\/m specifikacija tinka geležinkelio šakoms kasybos zonose ir miško plotuose; 30 kg\/m specifikacija dažnai naudojama kaip takelio medžiaga miesto lengvojo geležinkelio šakoms ir pramoninių parko krovinių krovinių linijoms. Jo geležinkelio galvutės, geležinkelio juosmens ir geležinkelio dugno dizainas atitinka ratų-bėgių jėgos principą. Derinant su miegančiaisiais ir tvirtinimo detalėmis, jis suteikia stabilų ir patikimą vikšrų pagrindą vidutinio ir mažo tūrio geležinkelio transportavimui.

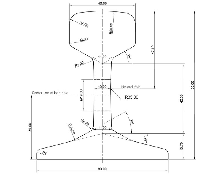
Teorinis P18 geležinkelio šviesos plieno bėgio svoris yra apie 18 kg metro. Kalbant apie dydį, jo aukštis paprastai yra 90 mm, apatinis plotis yra 80 mm, o galvos plotis - 40 mm. Šis dydžio dizainas ne tik užtikrina tam tikrą stiprumą, bet ir atsižvelgia į trasos klojimo lankstumą ir patogumą. Pvz., Palyginti su sunkiais bėgiais, lengvesnis svoris leidžia lengviau nešiotis ir montuoti pagal kai kuriuos rankinio konstrukcijos ar mažos mechaninės pagalbinės konstrukcijos scenarijus, sumažinant statybos sunkumus ir darbo intensyvumą. Vidutinis aukštis, apatinis plotis ir galvos plotis gali prisitaikyti prie įprastų miegamųjų dydžių, kad būtų užtikrintas takelių sistemos stabilumas.
Paprastai naudojama „P18“ lengvojo bėgio medžiaga yra 55Q, tai yra vidutinio anglies plienas. Anglies kiekis yra apie 0. 55%. Plieno anglies elementas vaidina svarbų vaidmenį gerinant stiprumą, kietumą ir atsparumą dilimui.
Produkto specifikacijos

Produktų pakuotė ir pristatymas
Standartinis GB 18 kg lengvųjų bėgių pakavimo ir transportavimo planas turi išsamiai apsvarstyti produkto charakteristikas ir transportavimo reikalavimus, kad būtų užtikrintas prekių saugumas ir vientisumas apyvartos metu. Kalbant apie pakuotę, labiausiai paplitęs būdas yra naudoti aukšto stiprumo plieninius diržus susiejant ir pakuotes. Tarpai susiejami paprastai valdomi nuo 1. 2-1. Tai gali užtikrinti transportavimo saugą ir palengvinti pakrovimo ir iškrovimo operacijas.
Siekiant sustiprinti apsaugos efektą, abiejuose bėgių galuose montuojami specialūs kovos su susidūrimo kampai apsaugai, kad būtų išvengta iškilimų ir pažeidimų transportavimo metu.



„Gnee Rail“ daugiausia dėmesio skiria „GB Standard Light Rails“ partijai ir turi didelę tiekimo pajėgumą. Produkto specifikacijos yra baigtos nuo 8 kg\/m iki 30 kg\/m, kad atitiktų skirtingus apkrovos laikymo reikalavimus. Standartizuotas gamybos procesas yra priimtas siekiant užtikrinti stabilią ir patikimą produkto kokybę. Profesionalūs pardavimo komanda gali pateikti geriausią viešųjų pirkimų planą pagal klientų poreikius ir palaikyti ilgalaikio bendradarbiavimo susitarimus. Tobula logistikos sistema gali organizuoti konteinerių ar birių gabenimą, kad būtų užtikrintas didelio tūrio užsakymų pristatymas laiku. Griežtas kokybės tikrinimo procesas užtikrina, kad kiekviena produktų partija atitiktų nacionalinius standartus.





Populiarus Žymos: P18 geležinkelio šviesos plieno bėgis, Kinija P18 geležinkelio šviesos plieno geležinkelių gamintojai, tiekėjai, gamykla






